Als je ooit aan de Maaskade bent geweest, herken je het direct: het iconische Van Driel Gebouw. Een rijksmonument met karakter, geschiedenis en een indrukwekkend uitzicht over de Maas. Sinds 1979 is dit bijzondere pand het trotse thuis van Ooms Makelaars, een gevestigde naam in Rotterdam en ver daarbuiten.
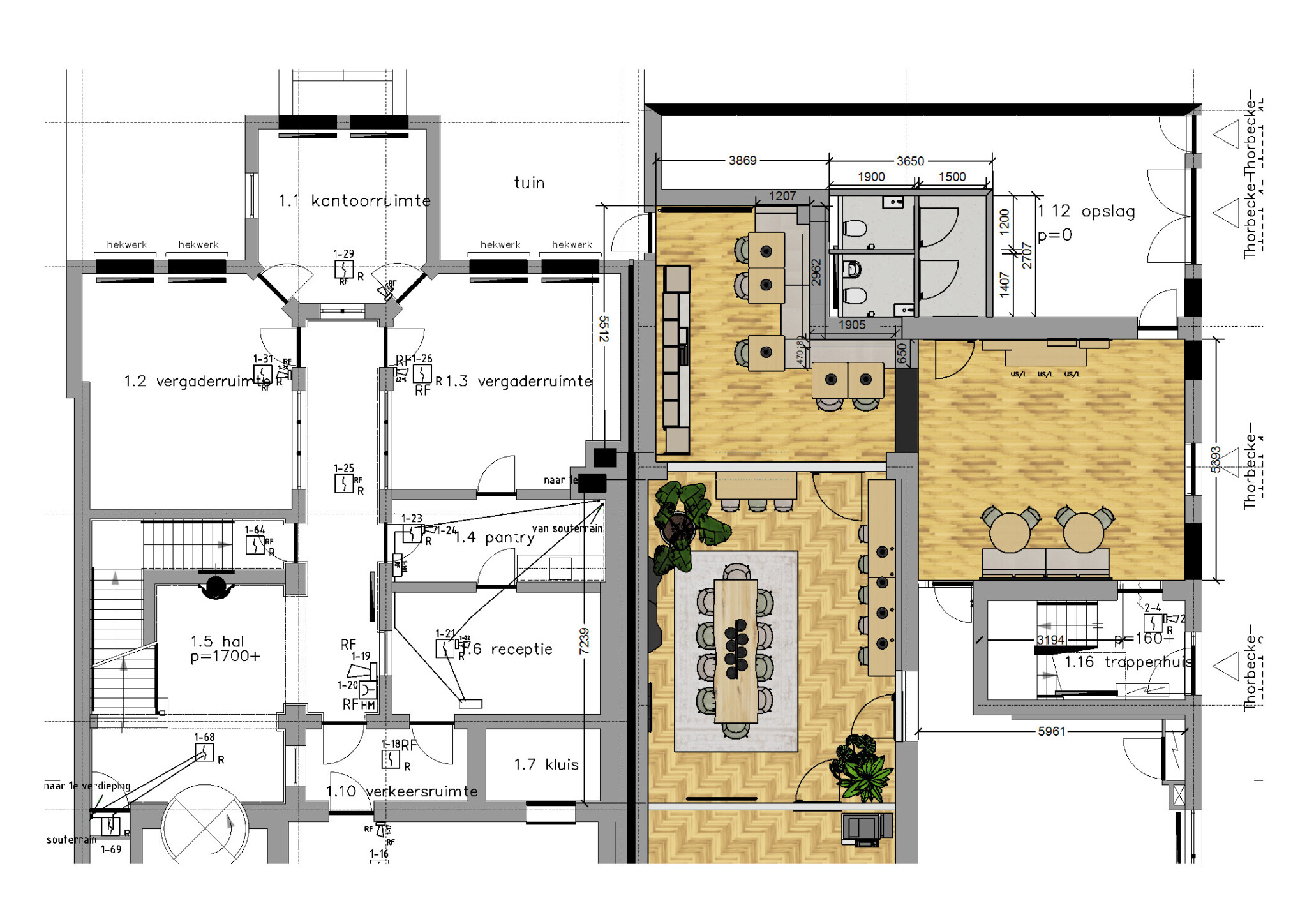
Wij kregen de eer om aan de slag te gaan met de inrichting van de hal, vergaderruimte, lunchruimte, keuken en multifunctionele ruimte van dit monumentale pand. Onze klant werkt of vergadert straks in een ruimte waar historie voelbaar blijft en waar alles klopt qua comfort, stijl en functionaliteit.
Klant
Ooms Makelaars
Plaats
Rotterdam
Diensten
Concept en diverse inrichting

Tijdens het ontwerp hebben we steeds één belangrijke voorwaarde voor ogen gehouden: respect voor het verleden. De monumentale elementen zijn volledig intact gebleven, terwijl je kan genieten van een eigentijdse, inspirerende werkomgeving. Van de ontvangsthal tot de vergaderruimtes, de lunchruimte, keuken en multifunctionele zones, alles is opnieuw ingericht met oog voor detail en functie.
Dit deel van het kantoor valt direct op door de imposante zandstenen gevel en het hoge dak. De trapopgang leidt je omhoog langs een koepel van gebrandschilderd glas en in de vergaderruimte aan de voorzijde kenmerkt een klassieke schouw met antieke klok en een historische kalender de sfeer van vroeger. De hal is indrukwekkend, met details die je meenemen naar het maritieme verleden van Rotterdam.
Je loopt een kantoor binnen dat eigenlijk uit vier panden bestaat, ooit gebouwd tussen 1880 en 1900 als woonhuizen. De originele gevel is behouden en de verbinding tussen de panden brengt het verleden tot leven in een moderne context. De originele muur tussen de twee Ooms-panden staat er nog steeds en vormt een robuuste herinnering aan vroeger, midden in een eigentijds interieur.

In pand nummer 115 stap je binnen in een slim doordacht ontwerp waarin elke vierkante meter optimaal benut is. Tijdens de grondige verbouwing stond één wens centraal: een multifunctionele ruimte creëren waar de klanten ontvangen kunnen worden, waar je kunt overleggen en in alle rust kunt werken.
Het resultaat? Een sfeervol werkcafé dat voelt als een verlengstuk van je werkplek. Dankzij maatwerkoplossingen is er een stijlvolle keuken met een uitnodigende lunchruimte gerealiseerd en een veelzijdige ruimte waar werken en ontmoeten moeiteloos samenkomen.
En misschien wel het mooiste detail: de oude draagmuur, volledig afgebikt, is als enige originele element bewaard gebleven. Wat ooit puur functioneel was, is nu een stoere eyecatcher geworden. Het perfecte samenspel tussen historie en eigentijds ontwerp.

Vóór de verbouwing…

…en ná de verbouwing!

Vóór de verbouwing…

…en ná de verbouwing!
In de grote vergaderruimte aan de voorzijde van pand nummer 113 neem je plaats aan een stijlvolle, strakke vergaderopstelling die naadloos aansluit bij de historische sfeer van de ruimte. Alles klopt van de opstelling tot de materialen. Je vergadert hier niet alleen functioneel, maar ook met gevoel voor stijl.
Ook in de monumentale hal valt meteen iets op: het chique zitje dat we speciaal voor deze ruimte hebben samengesteld. De diepe, rijke velours stoffering en zorgvuldig gekozen kleuren sluiten perfect aan bij de omgeving. Het voelt warm, uitnodigend en tegelijk heel stijlvol, precies wat je verwacht in een pand met zo’n geschiedenis.






















