Jeugdzorg Rotterdam schakelde ons in om hen te begeleiden bij de verbouwing van het nieuwe hoofdkantoor en om de verhuizing van de kleinere vestigingen naar deze centrale locatie soepel te laten verlopen.
Voor het interieurontwerp werkten we samen met Edmee Driebeek Interior Design. Zij vertaalde de huisstijlkleuren van Jeugdzorg naar een eigentijdse, herkenbare look & feel die door het hele pand voelbaar is. De wens om het kerndoel van Jeugdzorg, het ondersteunen van kinderen en hun ouders, zichtbaar te maken in de inrichting, stond hierbij centraal.
In nauwe samenwerking hebben we het plan verder uitgewerkt tot een omgeving die zowel functioneel als verbindend is. Een plek die niet alleen werkt, maar ook raakt.
Klant
Jeugdzorg
Plaats
Rotterdam
Diensten
Projectmanagement en totaalinrichting
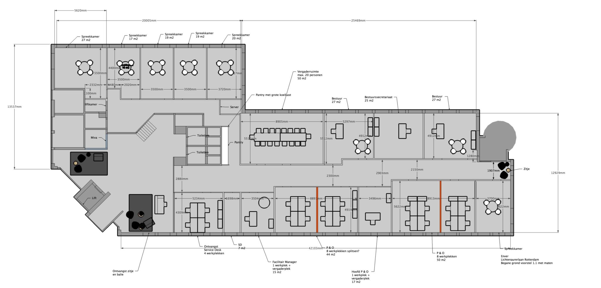
De grootste uitdaging in dit project was de strakke tijdsplanning. Jeugdzorg Rotterdam moest binnen 8 weken verhuizen, waardoor een nauwkeurige en efficiënte aanpak essentieel was.
Met intensieve begeleiding tijdens wekelijkse bouwvergaderingen en door voortdurend aanwezig te zijn bij de bouw en de uitwerking van bouwkundige en interieurtekeningen, zorgden we voor heldere visualisaties en vlotte communicatie tussen alle betrokken partijen. Zo hielden we het proces strak en verliep de samenwerking soepel, zodat de verhuizing op tijd en zonder verrassingen kon plaatsvinden.


De krappe tijdsplanning is midden in de zomer succesvol gehaald. Het resultaat? Een frisse, flexibele kantoortuin waar medewerkers gemakkelijk in- en uitlopen. Je vindt er diverse werkplekken, aanlandplekken en een informele overlegruimte, die samenwerking en ontspanning stimuleren.
Door het huidige meubilair te inventariseren, is er duurzaam hergebruikt, wat ook kosten bespaart. Het kleurenpalet van de huisstijl zorgt voor een kleurrijke, maar rustige uitstraling. Planten en groene afscheidingen versterken bovendien de rustgevende sfeer, precies wat nodig is om het kerndoel van de organisatie te ondersteunen.












